House Fullard - Award of Commendation - Feat.
17003
wp-singular,portfolio_page-template-default,single,single-portfolio_page,postid-17003,wp-theme-bridge,wp-child-theme-bridge-child,bridge-core-3.1.9,qodef-qi--no-touch,qi-addons-for-elementor-1.9.6,qodef-back-to-top--enabled,,qode-essential-addons-1.6.6,qode-page-transition-enabled,ajax_fade,page_not_loaded,vertical_menu_enabled,qode-title-hidden,side_area_uncovered_from_content,qode-smooth-scroll-enabled,qode-child-theme-ver-1.0.0,qode-theme-ver-30.8.8.7,qode-theme-bridge,disabled_footer_bottom,qode-portfolio-single-template-3,wpb-js-composer js-comp-ver-7.7.1,vc_responsive,elementor-default,elementor-kit-17284

About This Project

House Fullard

Award of Commendation from the PIA, 2009

“House Fullard” Mathews, P. (ed.) Contemporary Capital (Pretoria: Visual Books, 2011) pp 200 – 203.

 

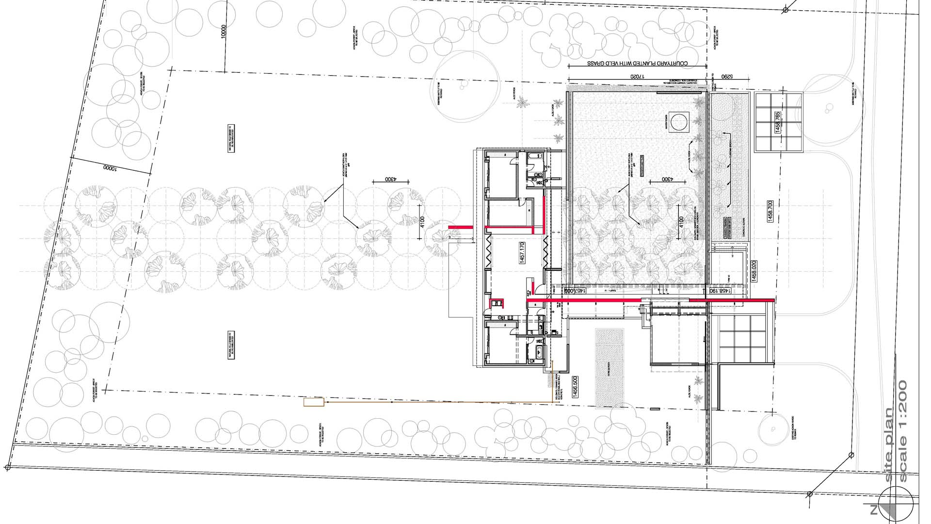
House Fullard, Midrand, Gauteng.

Architects: Morne Pienaar Architects in association with Daleen Kirsten

 

The house is a result of simple adjoining spaces carefully articulated with subtle thresholds. Transition from public to private spaces creates silent dialogue between interior and the exterior – between the man made and the natural landscape beyond.

 

The house is situated in Blue Hills, Midrand. The site slopes gently towards the north with the topography manipulated by historic farmers to create water furrows for site drainage towards a water body on the northern periphery of the site. This, together with the movement patterns of the sun was employed as a guide to determine the position of the house on the site.

 

Articulated as a simple diagram, a perforated rectangular volume is removed from the highveld grassland by a raised plinth of clay brickwork. Tension between the man made and the natural landscape is further enforced by a pronounced datum connecting the clay plinth and the brick enclosed envelope above. This tectonic is executed as a simple concrete ledge – an extended floor plate framing the mass above. A hardwood timber deck becomes a mediator between the built form and the natural grass land on the northern façade. This space is an extension of the interior program – an exterior room for living in. The smaller, linear and horizontal windows, which puncture the envelope of the house frames the landscape beyond. The landscape is experienced as an animation as you move through the house.

 

The house is a real house – a house for living in. It is most modest and does not try to compete with the other built form in the area – instead, it is completely hidden away and private. All one sees when approaching the house form the south is the two intersecting walls and the water tower – a simple and quite composition. The most beautiful quality of the house is the layering and the way that one is allowed to experience the house through a series of interconnected spaces – which resolves into the amazing lightness of the living room with the two opposing sliding stacking doors and the highveld landscape, framed on the outside.

 

An architect whom I admire very much once said the following about his own house – “The house is modest – but the place is beautiful” Oscar Niemeyer.

Category
Architecture